
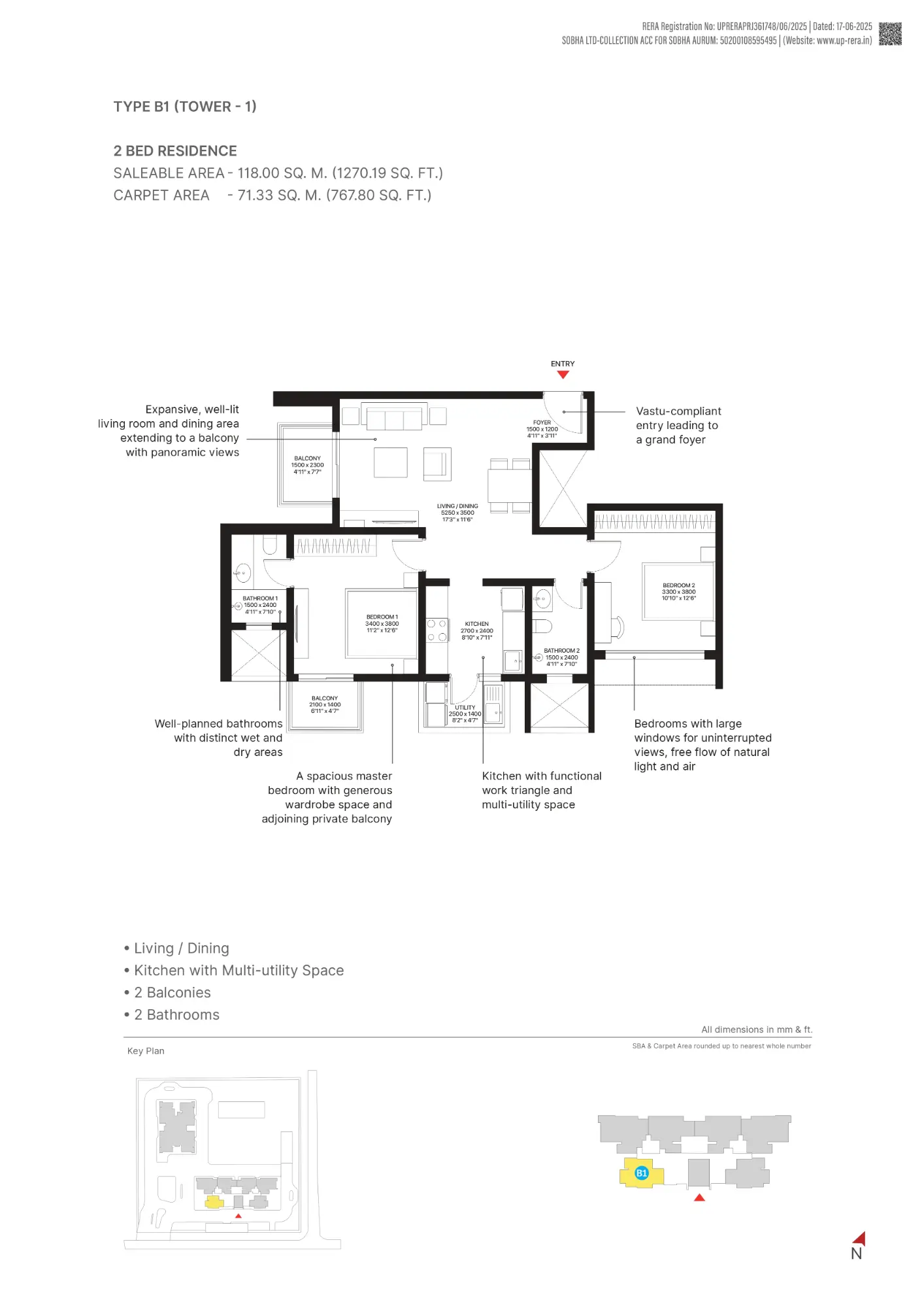
Discover Luxury Living at Sobha Aurum, Greater NoidaSobha Aurum is a premium residential project by SOBHA LIMITED, strategically located in Sector 36, Greater Noida—one of the most sought-after real estate destinations in the NCR region. Spanning 1.4 hectares with an estimated development cost of ₹80.88 crores, this RERA-registered project promises world-class apartment living with modern amenities and sustainable infrastructure.Sobha Aurum offers a diverse mix of 1 BHK, 2 BHK, 3 BHK, and 4 BHK apartments ranging from 40 sqm to 130 sqm, providing options for every family size and lifestyle need. Each unit features thoughtfully designed layouts with optimized carpet areas, multiple balconies, and modern ventilation.
8 features available in this project.
Choose BHK • Compare areas • View plan
Quick, easy-to-read insights for Aurum.